353 Sabourin – St. Pierre Jolys – 2 bdrm – Pet Friendly

St. Pierre

353 Sabourin – St. Pierre Jolys – 2 bdrm – Pet Friendly

St. Pierre
2 beds
2 baths
825 sq ft
$1,195
Request info

Basics

  • Date added: Added 2 weeks ago
  • Bedrooms: 2
  • Bathrooms: 2
  • Half baths: 0
  • Area: 825 sq ft

Description

  • Description:

    St. Pierre

    $1,195 + hydro + $25 parking

    ✨ Brand New 2 Bedroom Apartment in the Heart of St. Pierre Jolys – Stony Creek Apts – 353 Sabourin ✨

    Now Leasing – Pet Friendly | Elevator Access | In-Suite Laundry

    $1195 / month plus Hydro, parking $25

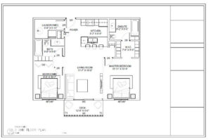
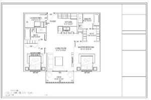
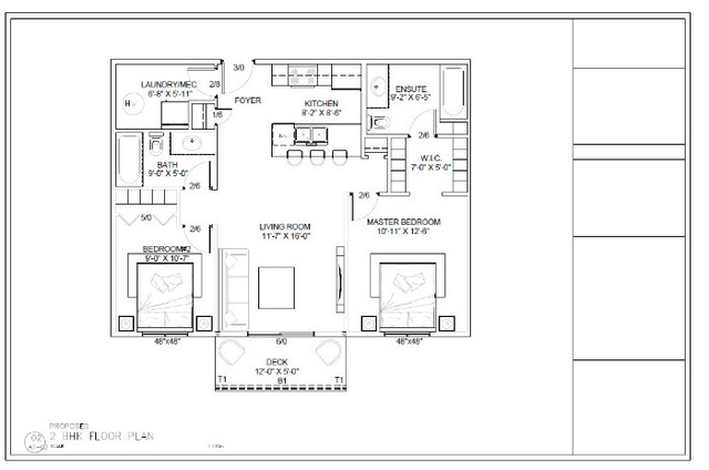
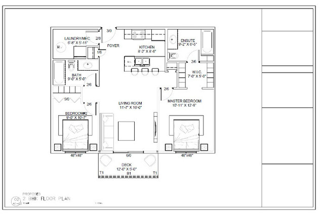
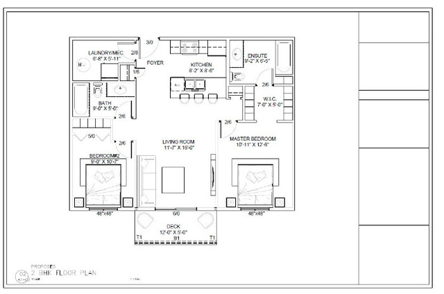
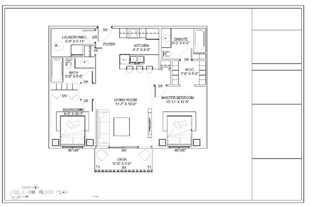
    Be the first to call this stunning, modern 2-bedroom, 2-bath suite your home! Located in the charming and welcoming community of St. Pierre Jolys, this brand-new apartment offers stylish comfort, practical features, and exceptional convenience.

    Suite Features:
    ✅ 2 Spacious Bedrooms
    ✅ 2 Full 4-Piece Bathroom
    ✅ Primary Bedroom features a walk in closet and a 4 piece ensuite bathroom
    ✅ In Suite Laundry
    ✅ Air conditioning
    ✅ Stainless Steel Kitchen Appliances – Fridge, Stove, Microwave & Dishwasher
    ✅ Luxury Vinyl Plank Flooring Throughout
    ✅ Large Windows for Abundant Natural Light

    Building Amenities:
    🚗 On-Site Parking Available
    🐾 Pet Friendly – Furry Family Members Welcome (with pet deposit)
    🛗 Elevator Access for Easy Mobility
    🔒 Secure Entry for Peace of Mind

    Whether you’re downsizing, starting fresh, or looking for the perfect blend of small-town charm and modern living, this unit checks all the boxes. Enjoy nearby walking trails, shops, local dining, and a close-knit community atmosphere — all just 30 minutes from Winnipeg.

    Don’t miss your chance to live in one of St. Pierre Jolys’ newest and most desirable residences!

    A completed and approved application for tenancy is required prior to viewing any residence.
    The application link is available below or fill out an application at the Century 21 Gold Key office Monday – Friday 8am-530pm

Ask an Agent About This Home

Phone
By clicking the «REQUEST INFO» button you agree to the Terms of Use and Privacy Policy

Share this property

Copy

Or share with

Powered by Estatik

Reset password

Enter your email address and we will send you a link to change your password.

Powered by Estatik
Skip to content